• Kasteelpark

    Housing

    Kasteelpark, Lint

  • Kasteelpark

    Housing

    Kasteelpark, Lint

  • Kasteelpark

    Housing

    Kasteelpark, Lint

  • Kasteelpark

    Housing

    Kasteelpark, Lint

  • Kasteelpark

    Housing

    Kasteelpark, Lint

  • Kasteelpark

    Housing

    Kasteelpark, Lint

  • Kasteelpark

    Housing

    Kasteelpark, Lint

  • Kasteelpark

    Housing

    Kasteelpark, Lint

  • Kasteelpark

    Housing

    Kasteelpark, Lint

  • Kasteelpark

    Housing

    Kasteelpark, Lint

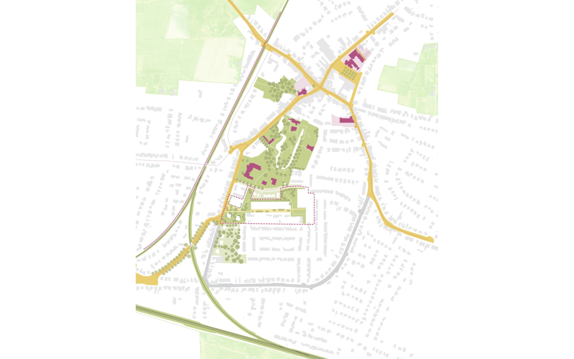
Kasteelplein is a quiet neighborhood that is continuously evolving. Its current form is the result of a phased process of additions, demolitions, and renovations that began in the early 1920s. The 2019 masterplan marks a new chapter in this transformation. A radical and ambitious vision aims to drastically reshape what the designers describe as a “banal neighborhood.” This vision is built on a dual and complementary strategy: green fingers and residential courtyards. The green fingers permeate Kasteelplein, strengthening the connection to the municipal park and the town center. The residential courtyards foster a sense of community among the homes.

  • Location
  • Lint
  • Size
  • Budget
  • -
  • Status
  • Competition
  • Type
  • Competition 2nd Place
  • Date
  • 2025
  • Client
  • Thuisrand
  • Team
  • Goedele Desmet
  • Ivo Vanhamme
  • Koen Moesen
  • Jonne Van Roy
  • External consultation
  • Sweco

Related projects